Beschrijving
Geheel nieuwe recreatiewoning op "Park Horizon", een rustig en sfeervol chaletpark in een bosrijke omgeving. Er zijn 6 nieuwe kavels gecreëerd, 3 hiervan zijn er inmiddels verkocht, dit betreft huisje nummer 4, de resterende 2 kavels zijn nog beschikbaar.
"Park Horizon" is een kleinschalig, besloten park en heeft een rustig karakter met een bosachtige uitstraling. Vanuit het park loopt u zo bos "Boeschoten" in. Doordat het park ruim opgezet is staat deze recreatiewoning op een royale kavel van circa 310 m² en heeft een eigen parkeerplaats op de kavel.
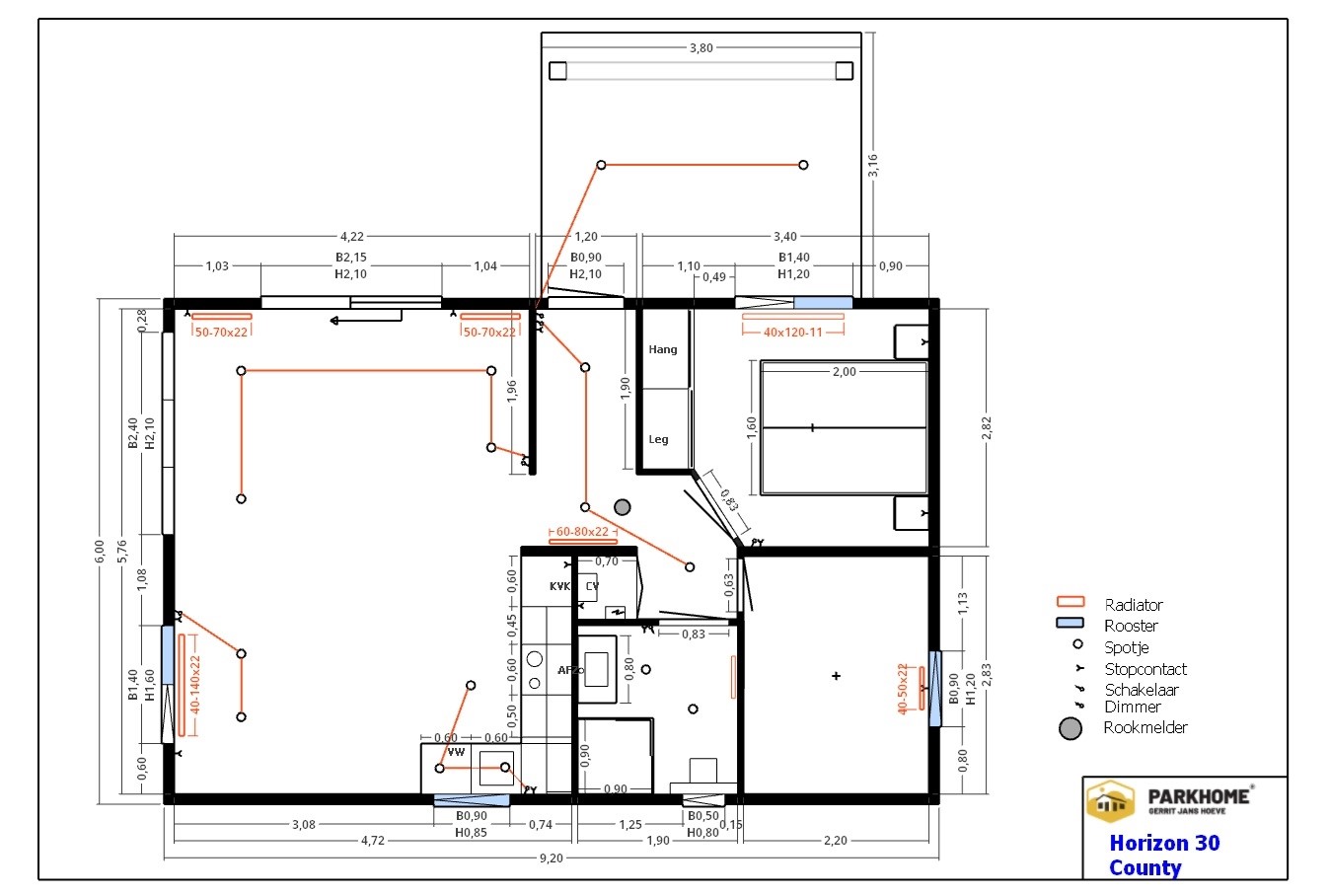
De recreatiewoning is goed geïsoleerd in vloer, wand en dak en is voorzien van kunststof kozijnen met HR++ glas. Daarnaast is deze recreatiewoning veelal opgebouwd uit duurzame materialen. De woonkamer heeft veel raampartijen en een verhoogd plafond. Hierdoor is deze ruim en licht van karakter! Vanuit de woonkamer loopt u direct de open keuken in. Daarnaast heeft deze woning 2 slaapkamers, een bergkast met de CV-ketelopstelling, een wasmachineaansluiting en een badkamer met toilet. Verder is er een airconditioning voor verwarmen en koelen geïnstalleerd.
Vanuit de woonkamer loopt u door de schuifpui direct het aangelegde terras op, welke is voorzien van een luifel. Naast het aangelegde terras staat een bijpassende onderhoudsvriendelijk berging van 6 m² in de tuin.
Kortom, een zeer compleet, royaal en onderhoudsvriendelijke recreatiewoning op een rustig en bosrijk park. Daarnaast vindt u in de directe omgeving veel bezienswaardigheden en activiteiten.
Grondoppervlakte: ca. 310 m²
Parkkosten 2026: € 4.200,-
Permanente bewoning en verhuur zijn niet toegestaan op park Horizon.
Meer informatie vindt u op de website van Park Horizon.
Indeling
Woonkamer met schuifpui naar terras en tuin. Een open keuken met een keukenblok in hoekopstelling voorzien van de volgende inbouwapparatuur: kookplaat, afzuigkap, combimagnetron, koel/vrieskast, vaatwasser. Twee slaapkamers, waarvan één met een vaste kastenwand. Badkamer met inloopdouche, wastafelmeubel en een toilet. Hal en een cv/bergkast. In de bergkast treft u de aansluiting voor de wasmachine.
Tuin
Vanuit de woonkamer loopt u door de schuifpui direct het aangelegde terras op, welke is voorzien van een luifel. Naast het aangelegde terras staat een bijpassende onderhoudsvriendelijk berging van 6 m² in de tuin.